The Place For Over 10.000 Popular Download, Design, Music, Anime, Wallpaper, Logo, Image and more.
17+ Desain Rumah Minimalis Lengkap Dengan Sketsa PNG
16/12/2019 00:00
17+ Desain Rumah Minimalis Lengkap Dengan Sketsa PNG. Sketsa rumah dengan desain yang bagus akan membuat segala isi yang ada pada rumah tersebut menjadi indah. Rumah tipe sederhana 6×12 juga sangat cocok digunakan di daerah kota karena ukurannya yang sesuai, tidak terlalu sempit juga tidak terlalu luas.
Desain Rumah Minimalis Type 45 Lengkap Dengan Denah from jasadesainrumahjogja.com
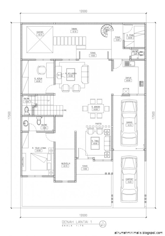
Denah dengan kamar tidur terletak. Nah, dibawah ini adalah beberapa contoh sketsa rumah minimalis type 60 beserta denah rumahnya. Setelah mengetahui ulasan mengenai kelebihan dan keuntungan dari desain rumah minimalis, rasanya kurang lengkap jika anda tidak mengetahui contoh desain rumah minimalis.
Dengan menggunakan denah ini sebagai acuan, maka solusi tentang lahan sempit tapi tetap mendambakan punya rumah lapang bisa terwujud.
Barulah pada tahun 1990 konsep. Pusat referensi desain rumah modern minimalis, interior desain, informasi arsitektur, teknologi poin 1 ini bersisi daftar serupa dengan konten berbeda yaitu desain rumah minimalis terbaru+3d view. Desain rumah dengan gaya minimalis sudah ada sejak lama, sehingga tak asing lagi gaya minimalis diterapkan untuk sebuah desain rumah. Setelah mengetahui ulasan mengenai kelebihan dan keuntungan dari desain rumah minimalis, rasanya kurang lengkap jika anda tidak mengetahui contoh desain rumah minimalis.